|
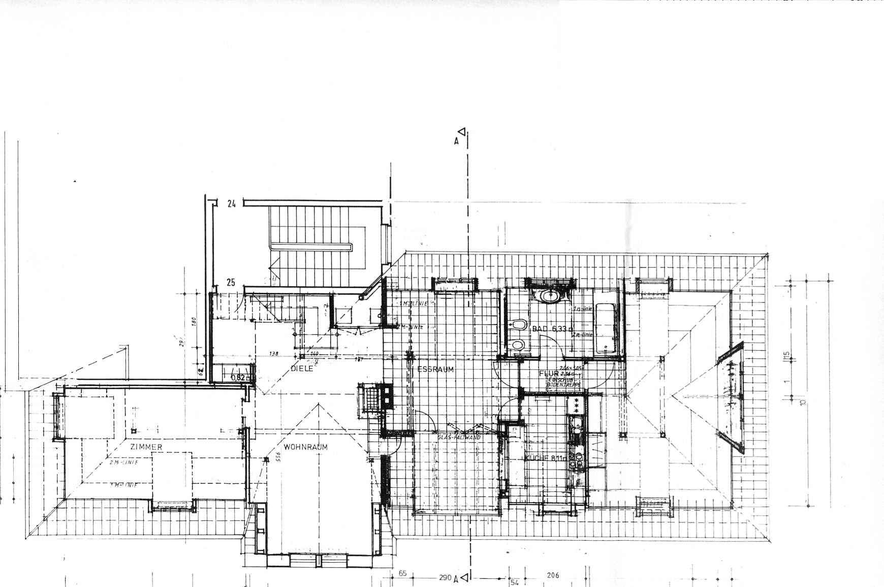
Die Grundrissorganisation der Wohnung
zeichnet sich durch einen größeren Zentralbereich aus, der sich unmittelbar
an den Eingansbereich mit der in den oberen Bereich führenden Treppe
anschließt. Hier gruppieren sich um den im Mittelpunkt gelegenen und als
funktionales und optisches Zentrum dienenden Kamin der Wohn- und Essbereich
mit Küche,
die voll verschließbare und somit auch als Wintergarten nutzbare Terrasse,
sowie ein durch eine Schiebetür abgetrenntes weiteres
großes Zimmer. Von diesem zentralen Gemeinschaftsbereich gehen in
entgegengesetzte Richtungen zwei individuelle Bereiche ab: der Elternbereich
mit einem großen Schlafzimmer mit einer effektvollen gläsernen
Pyramide und einem Badezimmer mit Vollbad und Bidet, sowie dem Kinderbereich im
Ober-geschoss. |
 |
|
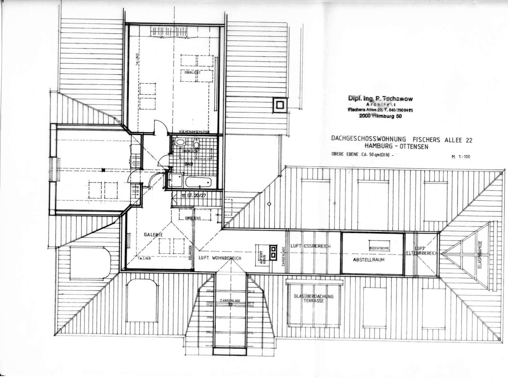
Die Treppe in den oberen Bereich führt zunächst auf die Galerie, die einen
schönen Blick auf den Wohn- und Essbereich der unteren Ebene erlaubt. Durch eine nachträglich
eingebaute schalldämmende Glastür gelangt man zu zwei Kinderzimmern sowie einem weiteren
Bad, dass über ein Vollbad sowie über eine Duschkabine verfügt. Die Treppe
ist so situiert und konzipiert, dass eine eventuelle Trennung der beiden
Ebenen in zwei selbständige Wohnungen ohne großen Aufwand möglich ist. Alle
notwendigen Anschlüsse für eine Küchenzeile im Obergeschoss sind bereits
vorhanden. |
 |